Novostavba se čtyřmi apartmány – Ližnjan!
Ližnjan je město v jihovýchodní Istrii, 11 km východně od Puly a sdílí hranici s obcí Medulin a také s městem samotným. Místo se v posledních letech stává stále vyhledávanějším cílem díky krásným východům k moři, nedotčené přírodě i zvyšujícímu se počtu zařízení, které nabízí během turistické sezóny.
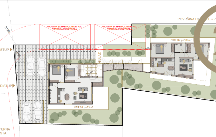
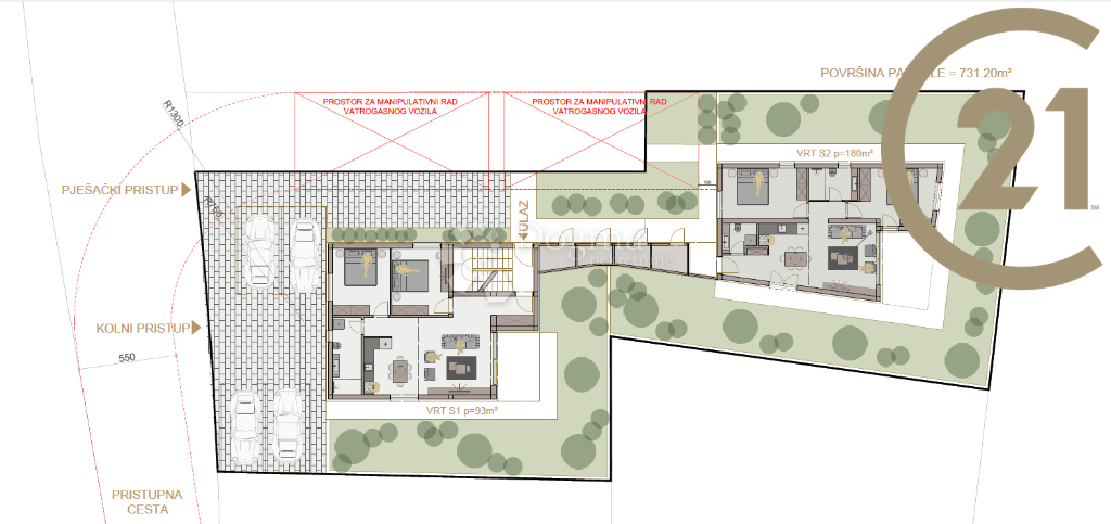
Přímo v Ližnjanu, na okraji města, které je hned u hranic s Medulinem, nabízíme čtyři krásné dvoupokojové apartmány. Objekt je koncipován jako dvě samostatné jednotky se dvěma byty v každé, tedy jeden byt v přízemí a jeden v patře, které jsou pěkně a účelně propojeny.
Apartmány v přízemí se skládají z chodby, dvou ložnic, kuchyně s jídelnou a otevřeného obývacího pokoje, koupelny a dvora. Zatímco byty v prvním patře jsou větší o jednu toaletu, tedy další toaletu pro hosty.
Každý z bytů bude vybaven kvalitní keramikou ve všech pokojích a terasách, plně vybavenými koupelnami s vybavením a sanitou od renomovaných výrobců a podlahovým vytápěním, PVC truhlářským zbožím s hliníkovou úpravou a moskytiérami a žaluziemi s elektromotorem, vzduchotechnika klimatizace jako opce pro vytápění a chlazení a mnoho dalších položek, z nichž lze po dohodě s investorem dohodnout konečné plnění samostatně.
V ceně každého bytu je jedno parkovací stání a jedna komora v centrální části domu v přízemí.
– Kvalitní nová konstrukce
– Komfortní dvoupokojové byty
– Energetický certifikát A+
– TOP výbava
– PVC tesařská s hliníkovým povrchem
– Dveře T-30 (požárně odolné)
– Parkovací míto
– 1800 m na pláž V Ližnjan
– 2500 m na pláž Medulin
Plánovaný začátek stavby je únor 2023, plán dokončení a obsazení je naplánován na léto 2024.
Platba za byty je flexibilní a lze ji platit v různých fázích výstavby.
Pro všechny další informace a případnou prohlídku nás, prosím, s důvěrou kontaktujte.
V ceně není zahrnuta provize zahraniční agentuře ve výši 3% z kupní ceny (+25% DPH z těchto 3%) + 3% daň z převodu státu.
V nabídce naší realitní kanceláře máme již přes 2500 zahraničních nemovitostí, rádi Vám s koupí nemovitosti poradíme.