Apartmán – Ližnjan, 74,79m2

  • 230000,00€
  • Byt
  • Typ nehnuteľnosti
  • 0
  • Garáž
  • 74
  • neuvedené
  • Rok výstavby

Prehľad

ID nehnuteľnosti: C21-27389
  • Byt
  • Typ nehnuteľnosti
  • 0
  • Garáž
  • 74
  • neuvedené
  • Rok výstavby

Popis

Novostavba se čtyřmi apartmány – Ližnjan!

Liznjan je město v jihovýchodní Istrii, 11 km východně od Puly a sdílí hranici s obcí Medulin a také s městem samotným. Místo se v posledních letech stává stále vyhledávanějším cílem díky krásným východům k moři, nedotčené přírodě i zvyšujícímu se počtu zařízení, které nabízí během turistické sezóny.

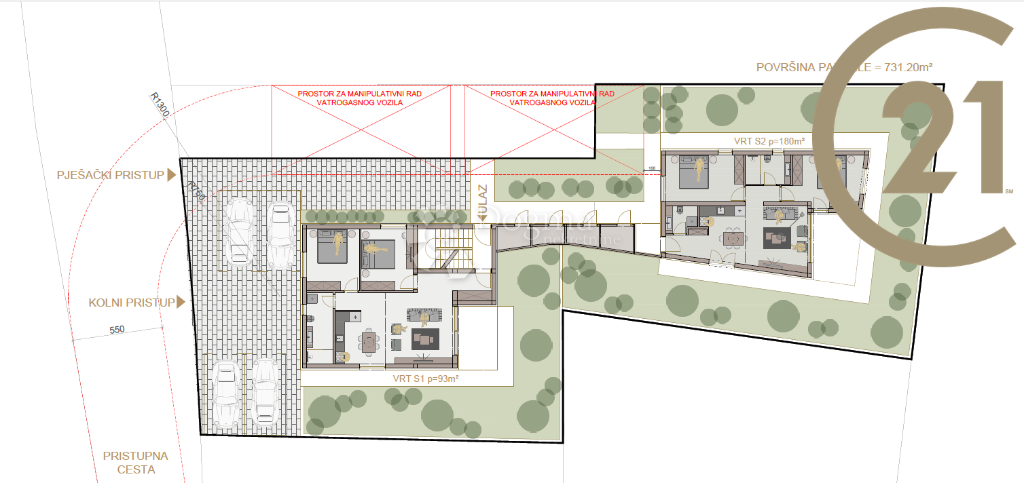
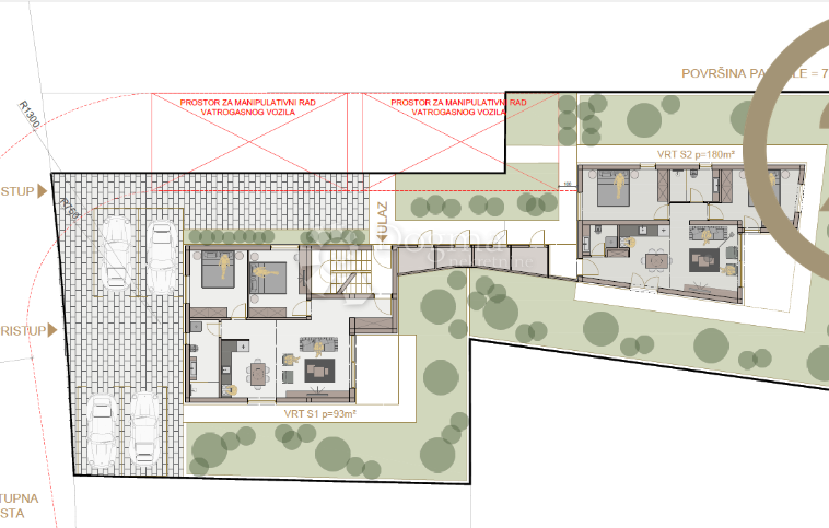
Přímo v Ližnjanu, na okraji města, které je hned u hranic s Medulinem, nabízíme čtyři krásné dvoupokojové apartmány. Objekt je koncipován jako dvě samostatné jednotky se dvěma byty v každé, tedy jeden byt v přízemí a jeden v patře, které jsou pěkně a účelně propojeny.

Apartmány v přízemí se skládají z chodby, dvou ložnic, kuchyně s jídelnou a otevřeného obývacího pokoje, koupelny a dvora. Zatímco byty v prvním patře jsou větší o jednu toaletu, tedy další toaletu pro hosty.
Každý z bytů bude vybaven kvalitní keramikou ve všech pokojích a terasách, plně vybavenými koupelnami s vybavením a sanitou od renomovaných výrobců a podlahovým vytápěním, PVC truhlářským zbožím s hliníkovou úpravou a moskytiérami a žaluziemi s elektromotorem, vzduchotechnika klimatizace jako opce pro vytápění a chlazení a mnoho dalších položek, z nichž lze po dohodě s investorem dohodnout konečné plnění samostatně.
V ceně každého bytu je jedno parkovací stání a jedna komora v centrální části domu v přízemí.

– Kvalitní nová konstrukce
– Komfortní dvoupokojové byty
– Energetický certifikát A+
– TOP výbava
– PVC tesařská s hliníkovým povrchem
– Dveře T-30 (požárně odolné)
– Parkovací místo
– 1800 m na pláž v Ližnjan
– 2500 m na pláž v Medulin

Plánovaný začátek stavby je únor 2023, plán dokončení a obsazení je naplánován na léto 2024.
Platba za byty je flexibilní a lze ji platit v různých fázích výstavby.

Pro všechny další informace a případnou prohlídku nás, prosím, s důvěrou kontaktujte.
V ceně není zahrnuta provize zahraniční agentuře ve výši 3% z kupní ceny (+25% DPH z těchto 3%) + 3% daň z převodu státu.
V nabídce naší realitní kanceláře máme již přes 2500 zahraničních nemovitostí, rádi Vám s koupí nemovitosti poradíme.

Adresa

  • Krajina Slovensko

Podrobnosti

Updated on 30 mája, 2024 at 5:31 pm
  • ID nehnuteľnosti: C21-27389
  • Cena: 230000,00€
  • Úžitková plocha: 74 m²
  • Plocha pozemku: 74 m²
  • Garáž: 0
  • Rok výstavby: neuvedené
  • Typ nehnuteľnosti: Byt
  • Status nehnuteľnosti: Na predaj

Doplňujúce podrobnosti

  • Číslo poschodia v dome: 1
  • Vlastníctvo: iný druh vlastníctva
  • Podkrovie/Nadstavba: nie
  • Podlahová plocha: 74
  • Vlastný pozemok: 93
  • Užitočná plocha: 74
  • Plocha terasy: 9
  • Vek nehnuteľností: 2024
  • Počet nadzemných podlaží: 1
  • Počet poschodí pod zemou: 1

Vlastnosti

Hypotekárna kalkulačka

Mesačne
  • Istina a úrok
  • Daň z nehnuteľnosti
  • Poistenie domácnosti
  • PMI
%

Čo sa nachádza v okolí

Please supply your API key Click Here

Zarezervujte si prehliadku

Vaše informácie

Kontaktné informácie

Zobraz ponuky nehnuteľností

Informujte sa o tejto nehnuteľnosti

0 Review

Sort by:
Leave a Review

Leave a Review

Podobné ponuky

Compare listings

Compare